For Sale in Upper East Side
525 East 89th Street 2L, NY, NY 10128

Status
Active
Rooms
4
BEDROOMS
2
Baths
1
Price
$ 825,000
Maintenance
$ 2,235.59/mo
sqft
1,100 sq. ft.
Type
Co-op
Your content goes here. Edit or remove this text inline or in the module Content settings. You can also style every aspect of this content in the module Design settings and even apply custom CSS to this text in the module Advanced settings.
Property Description
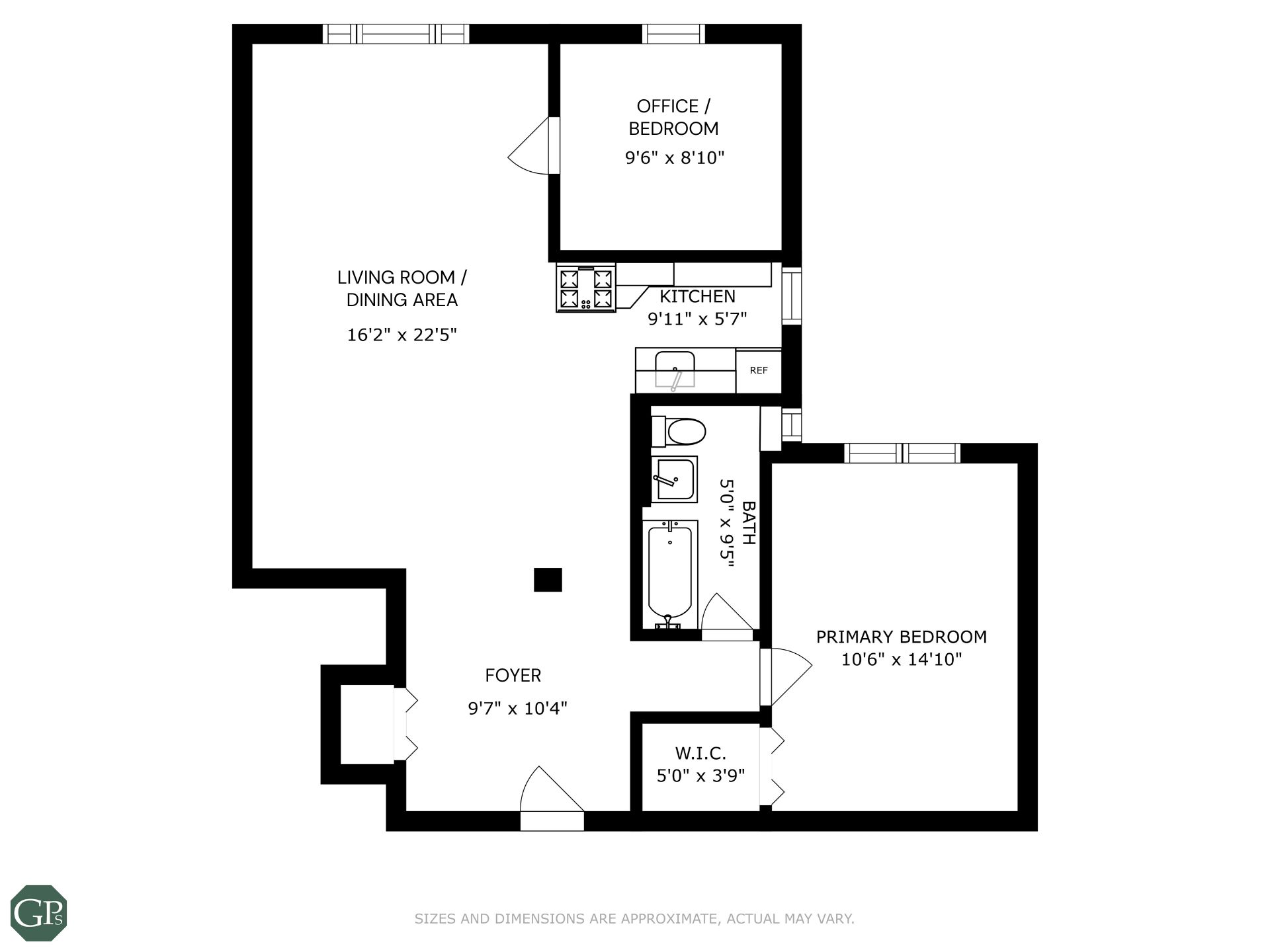
This beautiful, spacious pre-war apartment faces south, onto quiet tree and townhouse lined 89th Street, and is part of the sought-after Gracie Gardens co-op. It is the perfect blank slate; move in ready but not over designed. It is a Jr. 4 apartment having an additional room for use as either a bedroom or a den/office. There are high ceilings and hardwood floors throughout the apartment.
The living / dining room is open plan, flowing from the entry foyer all the way to the window over 89th Street. The kitchen has new cabinets and appliances but is awaiting the new owner’s design.
The master bedroom which is down a short hall also faces south with room for king sized furniture. There is also a walk-in closet waiting for the new owner to decide which route to take, California or Container Store. The windowed bathroom, next door, has been updated with marble tiling, a new sink, vanity and toilet.
There is a beautiful common garden, to enjoy, running between the four Gracie Gardens buildings. The building has a full-time doorman, package room, a wonderful attentive super and staff, a playroom, a laundry room and bike storage.
525 East 89th Street is between York and East End Avenues, a block from the Asphalt Green recreation center and 1/2 block from Carl Schurz Park and the East River Esplanade. The building is pet-friendly (with board approval) and permits pied-a-terres. Public transportation is near and plentiful. The neighborhood is established and comfortably residential.
Photos
Video
Floor Plan

Melissa Gordon
Listing Agent
(917) 855-9532
